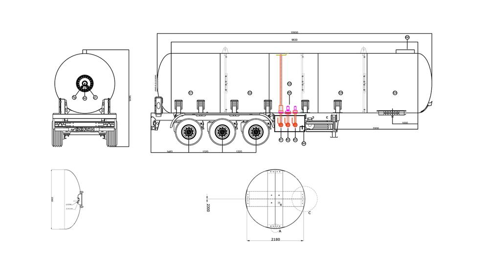
| 45 m³ LPG TAŞIMA TANKI TEKNİK DETAYLAR: |
| MARKA |
SERİN |
| TANK TİPİ |
Yatay Silindirik |
| PROJE KODU |
AD- Merkblatter / EN 13445 |
| DİZAYN SICAKLIKLARI |
Min -20°C / max +70°C |
| DİZAYN BASINCI |
17,5 bar |
| TEST BASINCI |
26,5 bar |
| MALZEME |
P355 GH or P355NH |
| BAŞ TİPİ |
Elipsoidal |
| TANK DIŞ ÇAPI |
45 m3 2.400 mm |
| TANK GÖVDESİ KALINLIĞI |
45 m3 10 mm |
| TANK BOMBE KALINLIK |
45 m3 12 mm |
| TOPLAM TANK UZUNLUĞU |
45 m3 11.200 mm |
| KOROZYON |
1 mm |
| TANK HACMİ |
45 m3 |
| TANK EKÜPMANLARI |
Hidrolik Operatör 1 Adet,
2" Küresel Vana 2 Adet BATU , 2” Hidrolik Vanalar 1 Adet ATILIM, 3”
Hidrolik vanalar 1 Adet ATILIM, 2" Emniyet Vanaları 2 Adet ATILIM,
Rotogauge (Döner Seviye Göstergesi) 1 Adet, ATILIM Gliserin manometre (0-25
bar), Ø 63 1 adet, PAKKENS Termometre (-30 / 60 °C) Ø63 1 adet, PAKKENS Acme
Dolum Kapağı 2 adet ATILIM Menhole 1 adet 16” Filtre 1 adet |
| KUMLAMA VE BOYAMA |
Boya öncesi Tank SA 2.5 kalite
astar ve poliüretan esaslı beyaz son kat toplam min. 150 mikron. RENK: BEYAZ |
| KONTROL (MUAYENE VE
TESTLER) |
Aşağıda belirtilen tüm testler
ve muayeneler üçüncü şahıs kontrolünde gerçekleştirilecek ve aynı merci
tarafından sertifikalandırılacaktır. Tasarım ve hesaplamaların kontrol ve
onayı, Malzeme muayenesi ve ayrı ayrı kaşe aktarımı, Görsel ve boyutsal muayene
plakası yönlendirmesi, Kafa kontrolü, Radyografik kontrol, Penetrasyon boya
testi, Hidrostatik test, A/M test ve muayenelerinin raporları müşteriye
sunulacaktır. Müşteri, tank ve muayenelerin tamamlanmasından sonra üçüncü
şahıs tarafından verilecek olan tankın muayene sertifikaları verilecektir.. |
| SERTİFİKASYON |
ISO 9001-2008 VE EN 3834-2 |
| KAYNAK METODU |
Tüm kaynakçılar EN 287-1:2004
standardına göre sertifikalandırılmıştır. Kaynak dikişlerinde tam penetrasyon
sağlanacaktır. Kaynak, kaynakçılar tarafından tozaltı kaynağı olarak
yapılacaktır. Yivler EN ISO 9692-2 ile uyumlu olacaktır. & EN ISO 14171 ile
Dolgu Malzemesi ve EN 760 ile Flux. |
| BÖLMELER |
Tank, 3 adet sıvılaşmayı
önleyici bölmeye sahip olacaktır. |
|
|
| YARI
RÖMORK TEKNİK DETAYLARI: |
| 3 DİNGİL YARI RÖMORK |
|
| ŞASELER |
Yarı şase 6252 malzemesinden
üretilmiştir.Çelik kalitesi. AĞIR HİZMET tipi |
| ŞASE |
Marka: SERİN Dingil 12 TON.
Kapasite: 3X12 tons/Dingil Tip: Hava Süspansiyolu Dingil Kampanalı fren |
| SÜSPANSİYON SİSTEMİ |
Hava Süspansiyonlu |
| FREN SİSTEMİ |
WABCO ABS (ALMAN) |
| PARK AYAKLARI |
OMS marka Çift Devirli, 24.000
kaldırma kapasiteli, Mekanik Park Ayakları |
| LASTİKLER |
Ölçü 385 X 65 X 22,5 BRIDGESTONE
7 adet. |
| KÜRESEL VANA DOLABI |
vanalar sağ tarafta olacaktır |
| JANTLAR |
R22,5 ölçülerinde JANTSA marka 7
adet jant |
| ÇAMURLUKLAR |
Alüminyum kaplama çelik
çamurluklar |
| KING PIN : |
2" flanşlı ve yüksek baskı
gerilmesi ve kopmasına dayanıklı çelik ve civatalı demonte olup kolaylıkla
değiştirilebilir OMS marka. King Pim plaka kalınlığı 12 mm olacak ve min. 3+2
çelik 160 NPU ile takviye edilecektir. . |
| ELEKTRİK SİSTEMİ |
Avrupa normlarında 24 V elektrik
sistemleri bulunmaktadır. Ayrıca tank üstü ve treyler üstü ile elektrik
lambası ve uyarı levhaları olacaktır. (ADR). Arka Tamponda 2 adet stop
lambası, deponun her iki tarafında 5'er adet stop lambası. |
| REFLEKTÖRLER |
Tankın her iki yanında 3M Marka
sarı renkli reflektör ve arka tamponda ve arka bombede 3M Marka kırmızı renk
reflektör . |
| AKSESUARLAR |
1 adet Çelik Tampon, 1 adet su
deposu (30 lt kapasiteli Plastikten imal edilmiştir), 1 adet basket tipi
stepne taşıyıcı, 2 adet takoz ve bağlantısı, 2 adet Yangın Söndürme Dolabı
(ADR), 2 adet Gıda & Alet Çelikten imal edilmiş dolaplar, Tankın üstüne
güneşlik takılacaktır. |